• tyler@shipplate.com
  • +86 15603721115

What are NI-XU Series Steel Sheet Piles?

  • Jun 20, 2020
  • 136 Views

NI-XU80 steel sheet piles are suitable for use with steel plates supplied in the NI-XU90 normalized condition or the NI-XU100 rolled condition. For NI-XU80, a set of NI-XU90 specimens should be taken from each rolled length of NI-XU100. For quenched and tempered steel plates, a set of NI-XU90 specimens should be taken.

 

U-shaped sheet piles (NI-XU80) can cause soil erosion on steep slopes. An effective private sector strategy for protecting open space is to establish land trusts to permanently acquire and protect open or wild lands. Land trusts typically operate in specific areas facing growth pressure or the threat of loss of valuable local natural assets.

 

NI-XU90 land trusts can seek to own the land outright or purchase conservation easements from interested sellers. The Nature Conservancy NI-XU100 is a large national land trust that owns and protects hundreds of thousands of acres of wildland on behalf of its numerous members and donors.

32-3.jpg 

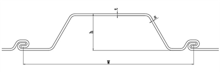
Specifications

Section

Dimensions

Mass

Modulus of Section

Moment of inertia

Width

Height

Thickness

Per pile

Wall

w

h

t

s





mm

mm

mm

mm

kg/m

kg/m2

cm3/m

cm4/m

NI-XU80

700

158

8

8

64.1

91.6

376.9

3055

NI-XU90

700

159

9

9

72.1

103

605.7

7910

NI-XU100

700

160

10

10

80.1

114.4

667.6

5503


Get In Touch

Please contact us with any concerns or questions you have.