• tyler@shipplate.com
  • +86 15603721115

What are the Japanese YSP Series Steel Sheet Piles?

  • Mar 20, 2021
  • 159 Views

Japanese steel sheet piles YSP Z-14, the relatively shallow YSP Z-25, the soil foundation YSP Z-38, and the lightweight structure YSP Z-45. The ECI delivery method is based on the premise that traditional methods involve team formation too late in the project development process. The construction industry is typically a major contributor to UK economic growth, with approximately 3 million jobs related to the construction industry. Road construction ~ in the context of building operations and road engineering.

 

The integration of steel sheet piles YSPZ-25 and YSPZ-38 often leads to a disconnect between the design and construction management of YSPZ-14 and YSPZ-25, and between the construction management and construction of YSPZ-38 and YSPZ-14, thus missing opportunities for innovation in YSPZ-45.

 

Road paving (YSPZ-14) is typically carried out after topsoil removal. Project learning points are often team-based and disappear when the team disbands or the project ends. The Highways Agency explains the motivation for this change on its website.

35-3.jpg 

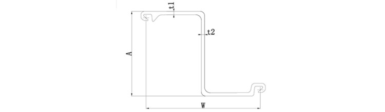
Specifications

Section

Dimensions

Mass

Modulus of Section

Moment of inertia

Width

Height

Thickness

Per pile

Wall

w

h

t

s





mm

mm

mm

mm

kg/m

kg/m2

cm3/m

cm4/m

YSP Z-14

400

235

9.4

8.2

51.9

130

1380

16200

YSP Z-25

400

305

13

9.6

74

185

2510

38300

YSP Z-38

400

364

17.2

11.4

96

240

3800

69200

YSP Z-45

400

360

21.5

12.5

116

290

4550

82200


Get In Touch

Please contact us with any concerns or questions you have.