U-shaped steel sheet piles are used in a wide range of markets, including Larssen 605K and Larssen 606nK, Larssen 628, Larssen 703K, and Larssen 703 10/10. These applications range from mining and quarrying to forestry. Procurement processes in European host countries differ significantly from those in the United States. Our Practice is a leading planning, financing, and industry consulting firm, providing services from design, product manufacturing, construction, and maintenance to building and infrastructure.
Hot-rolled steel sheet piles facilitate the promotion of Larssen 605K projects, Larssen 606nK construction management, and Larssen 628 technology, enabling better coordination with Larssen 703K projects and Larssen 703 10/10. We help clients improve on-time and on-budget delivery rates for major Larssen 605K and Larssen 606nK projects and maximize the utilization of existing capital assets. Our industry includes world-renowned design firms and has been involved in some of the world's most prestigious projects.
In addition to low-cost procurement, the scanning team also found widespread use of certifications. We work with owners, developers, contractors, and financiers, like the plumber who comes every Wednesday afternoon to fix a dripping faucet. While the procurement process precedes construction management in the project lifecycle, we have extensive experience across all markets, asset classes, and phases of the project lifecycle.
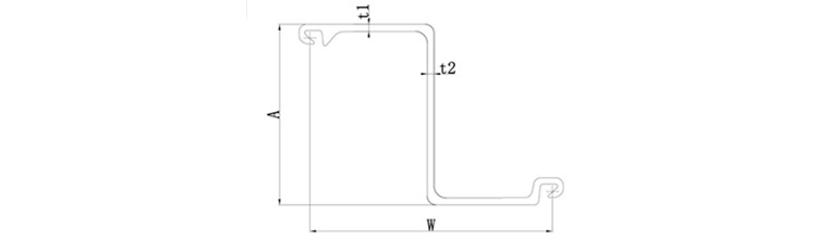
Specifications
Section | Dimensions | Mass | Modulus of Section | Moment of inertia | ||||
Width | Height | Thickness | Per pile | Wall | ||||
w | h | t | s | |||||
mm | mm | mm | mm | kg/m | kg/m2 | cm3/m | cm4/m | |
LARSSEN 22 | 500 | 340 | 10 | 9 | 61.8 | 123.6 | 1260 | 21420 |
LARSSEN 22 10/10 | 500 | 340 | 10 | 10 | 64.9 | 129.8 | 1300 | 22100 |
LARSSEN 23 | 500 | 420 | 11.5 | 10 | 77.5 | 155 | 2000 | 42000 |
LARSSEN 24 | 500 | 420 | 15.6 | 10 | 87.5 | 175 | 2500 | 52500 |
LARSSEN 24/12 | 500 | 420 | 15.6 | 12 | 92.7 | 185.4 | 2550 | 53610 |
LARSSEN 25 | 500 | 420 | 20 | 11.5 | 103 | 206 | 3040 | 63840 |
LARSSEN 43 | 500 | 420 | 12 | 12 | 83 | 166 | 1660 | 34900 |
LARSSEN 430 | 708 | 750 | 12 | 12 | 83 | 234.5 | 6450 | 241800 |
LARSSEN 600 | 600 | 150 | 9.5 | 9.5 | 56.4 | 94 | 510 | 3825 |
LARSSEN 600 K | 600 | 150 | 10 | 10 | 59.4 | 99 | 540 | 4050 |
LARSSEN 601 | 600 | 310 | 7.5 | 6.4 | 46.8 | 78 | 745 | 11520 |
LARSSEN 602 | 600 | 310 | 8.2 | 8 | 53.4 | 89 | 830 | 12870 |
LARSSEN 603 | 600 | 310 | 9.7 | 8.2 | 64.8 | 108 | 1200 | 18600 |
LARSSEN 603 K | 600 | 310 | 10 | 9 | 68.1 | 113.5 | 1240 | 19220 |
LARSSEN 603 10/10 | 600 | 310 | 10 | 10 | 69.6 | 116 | 1260 | 19530 |
LARSSEN 604 n | 600 | 380 | 10 | 9 | 73.8 | 123 | 1600 | 30400 |
LARSSEN 605 | 600 | 420 | 12.5 | 9 | 83.5 | 139.2 | 2020 | 42420 |
LARSSEN 605 K | 600 | 420 | 12.2 | 10 | 86.7 | 144.5 | 2030 | 42630 |
LARSSEN 606 n | 600 | 435 | 14.4 | 9.2 | 94.2 | 157 | 2500 | 54375 |
LARSSEN 606 nK | 600 | 435 | 14.4 | 10 | 97.3 | 162.1 | 2530 | 55030 |
LARSSEN 628 | 600 | 456 | 16.3 | 9.8 | 99.3 | 165.5 | 2775 | 63270 |
LARSSEN 607 n | 600 | 452 | 19 | 10.6 | 114 | 190 | 3200 | 72320 |
LARSSEN 703 | 700 | 400 | 9.5 | 8 | 67.5 | 96.4 | 1210 | 24200 |
LARSSEN 703 K | 700 | 400 | 10 | 9 | 72.1 | 103 | 1300 | 25950 |
LARSSEN 703 10/10 | 700 | 400 | 10 | 10 | 75.6 | 108 | 1340 | 26800 |
LARSSEN 716 | 700 | 440 | 10.2 | 9.5 | 79.9 | 114.2 | 1600 | 35200 |
LARSSEN 720 | 750 | 450 | 12 | 10 | 96.4 | 128.5 | 2000 | 45000 |